What Makes an Ideal Floor Plan? Key Layout Features Every Custom Home Should Have

The floor plan serves as the foundation of every successful custom home. While architectural styles and finishes capture attention, the layout ultimately determines how a home functions day-to-day.

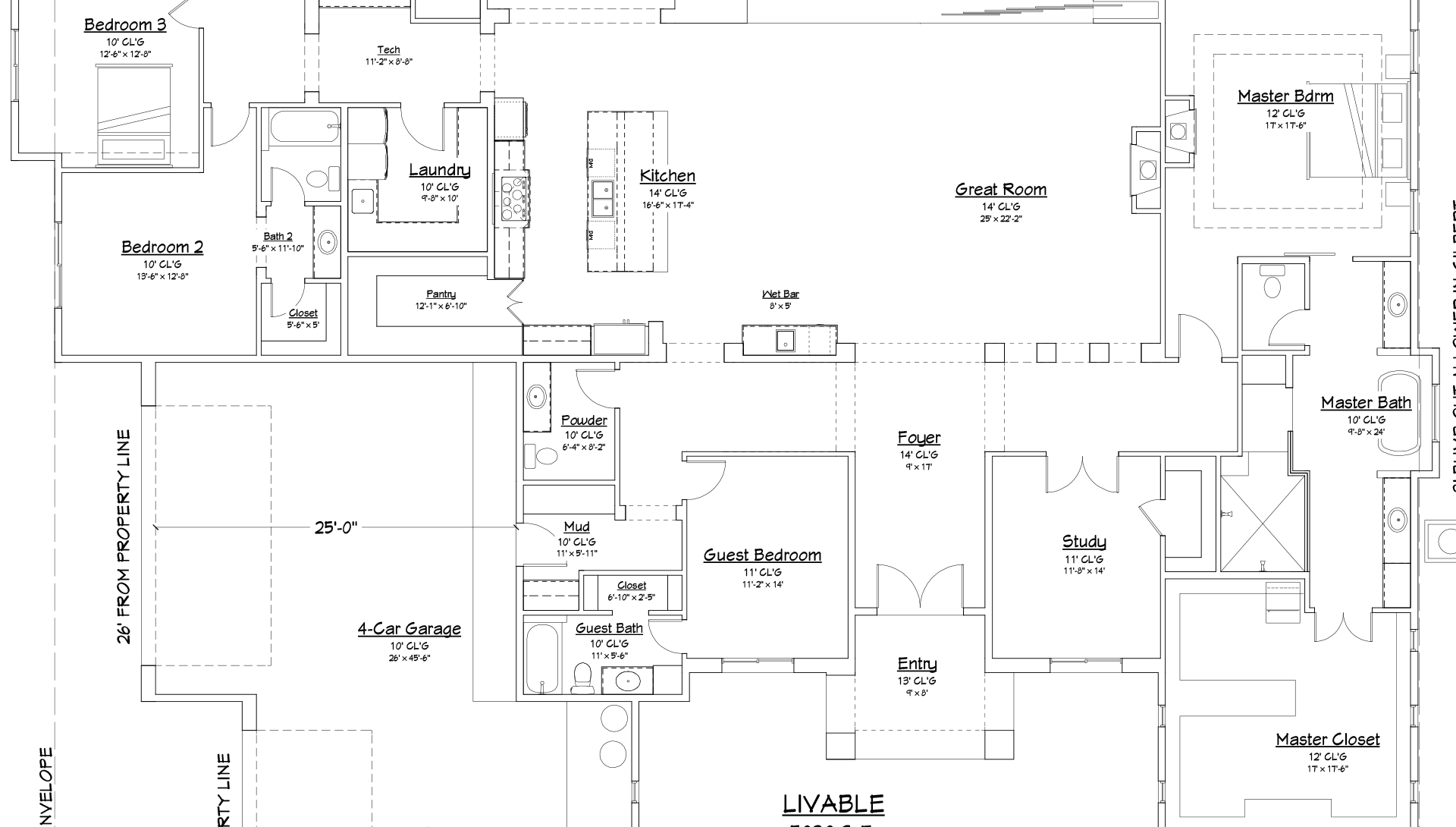
For homeowners embarking on new home construction, understanding essential layout features helps ensure the finished home meets both immediate needs and long-term requirements. Here are the floor plan features every client should know.

Open Concept Living Spaces

Modern luxury custom homes have largely embraced open floor plans that connect kitchen, dining, and living areas. This layout creates a sense of spaciousness and makes it easier for family members and guests to interact naturally.

Strategic furniture placement, variations in ceiling height, and subtle flooring transitions help delineate different zones without resorting to walls. This keeps the airy feel intact while still providing functional separation between cooking, dining, and relaxation areas.

Thoughtful Traffic Flow

Traffic flow often gets overlooked in floor plan design, yet it significantly affects daily comfort. Hallways and pathways should allow smooth movement without disrupting activities in the main living spaces. Nobody wants a layout that forces people to cut through the center of rooms or walk through private areas just to reach common spaces.

Custom home builders typically position primary circulation paths along the perimeter of main rooms. Entryways work best when they provide clear, direct access to key areas.

Strategic Room Placement

How rooms relate to each other makes a real difference in daily comfort. Bedrooms work better when placed away from high-traffic areas and noise sources. Primary suites gain valuable privacy when positioned on opposite sides of the home from children's bedrooms, or on separate floors altogether.

Service areas like laundry rooms and mudrooms function most efficiently near entry points and bedrooms. Placing laundry on the same floor as bedrooms saves countless trips up and down stairs.

Natural Light Optimization

Window placement can completely transform how spaces feel throughout the day. Luxury home builders pay close attention to solar orientation when designing floor plans, positioning main living areas to capture natural light during the hours they're used most.

South-facing windows deliver consistent daylight in living spaces. East-facing windows in kitchens welcome morning sun. West-facing outdoor areas catch evening light, perfect for entertaining.

Flexible Multipurpose Spaces

Life has a way of changing over time, and smart floor plans accommodate that evolution. A main-floor office today might become a guest bedroom tomorrow. That playroom could eventually transform into a home gym or dedicated hobby space.

The most successful multipurpose rooms include access to bathrooms and offer sufficient square footage for various uses. French doors or pocket doors let these spaces feel either connected to or separate from the main living areas.

Outdoor Living Integration

In the right climate, homes can really benefit from seamless transitions between indoor and outdoor spaces. Large sliding or folding glass doors create both visual and physical connections to patios, decks, and courtyards.

Floor plans work best when outdoor living areas sit adjacent to kitchens and main gathering spaces. This natural placement makes entertaining easier and encourages regular outdoor use.

Adequate Storage Throughout

Storage needs go well beyond closets and garage space. Well-designed floor plans weave storage solutions throughout the home in smart, accessible places. Mudrooms need cubbies and coat storage. Kitchens require proper pantries. Living areas benefit from built-in shelving.

Luxury custom home builders often tuck butler's pantries between kitchens and dining areas, providing appliance storage while keeping the mess out of sight. These thoughtful placements help maintain clean sight lines while keeping everything within reach.

Bringing It All Together

Creating an ideal floor plan means juggling multiple considerations, from daily traffic patterns to future flexibility. When done right, the layout enhances how people actually live while still delivering visual appeal.

AFT Construction's custom homes portfolio showcases diverse floor plan approaches that successfully weave these features into luxury home designs.

Planning Your Custom Home Layout

Creating an ideal floor plan means juggling multiple considerations, from daily traffic patterns to future flexibility. When done right, the layout enhances how people actually live while still delivering visual appeal.

For homeowners ready to design their ideal floor plan, partnering with an experienced luxury home builder like AFT Construction ensures you can achieve both aesthetic vision and functional reality. To learn more about thecustom home building process and how thoughtful floor plan design creates spaces people genuinely love living in, contact AFT Construction and discuss creating a floor plan that fits your lifestyle.

Previous
Previous

How New Home Construction Techniques Are Making Luxury Homes More Energy Efficient

Next
Next

5 Innovative Features That Elevate a Custom Luxury Home